| État de disponibilité: | |
|---|---|
| Quantité: | |
BMS
spécificationof
Highway W faisceau de faisceau de faisceau de faisceau
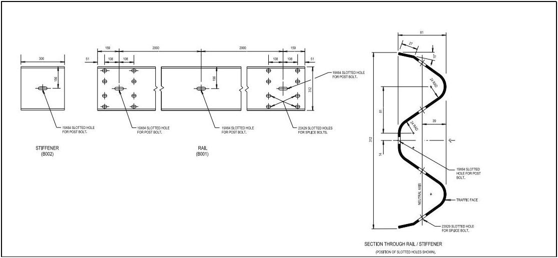
Profil:
Type 1
Type 2
Matériel
Largeur efficace: 312/502 / 506mm
Épaisseur matérielle: 2.5-3,81mm
Matériau applicable: acier galvanisé, bobine d'acier laminée à chaud
Avec résistance au rendement 345-550MPA
Épaisseur d'inspection: 2.67 / 3.42 / 3.43mm
Suivre
Decoiler hydraulique de 6 tonnes → Dispositif de nivellement → Dispositif de poinçonnage hydraulique → Dispositif d'alimentation → Système de la machine principale → Poste hydraulique Coupe → Rack de sortie
Poinçonner des trous: (comme suit)
Type 1:19x64 et 23x29;Taper2:19x64 et 23x29
Besoin total 2 moules de poinçonnage
Composants de la machine
1)6 tonnesDecoileur hydraulique: un ensemble
2)Dispositif d'alimentation et de nivellement
Avec guide de matériau d'alimentation et dispositif de nivellement
UP Trois Down quatre dispositif de nivellement totalement de sept arbres
cadre corporel fabriqué à partir deAcier de type H450parsoudage; côtéépaisseur du mur:Q235 T30mmArbres fabriqués à partir de45 # acier, Diamètre =φ120mm, Tonalité plaquée avec chromé dur, usinée de précision
3) trou de poinçonnageAppareil(Avec quatre moules de trou de poinçonnage)
Moteur hydraulique:37kw, Plage de pression hydraulique:0-25MPA (250bar)
Outil de poinçonnage et de coupeMatériel:mouleracier CR12MOV (= acier D2, avec un million de fois Poinçonner / Couper la vie), Traitement thermique au HRC58-62 degrés
2 cylindresperforationsystème ,le totalBesoin de quatre moules de poinçonnage19x64 et 23x29 et 20x65 et 24x30
4) machine principale
Cadre corporel fabriqué à partir deAcier de type H450par soudage
Rouleaux fabriqués à partir deCR12Acier, CNCTours, arbres de traitement thermique diamètre =ф95, précision usinée
Lecteur de boîte de vitesses (rouleaux supérieurs et inférieurs avec puissance)
Structure de type de colonneconception(Arche commémorative en fonte, épaisseur: 55mm)Boîte de vitesse conduisant, à propos de19 étapesformer
Moteur principal =45Kw,La fréquenceVitesse de contrôle de vitesse Moteur de redculate:Kséries
Block coulissant:150 * 150mm
Tous lesboulons à vis avec grade 8.8(usines bon marché utilisent de la faibles grade 4.8)Pour assurer la correction de la Structure de la machine étroitement et longue durée de vie pendant la machine à long terme
Vitesse de formage réelle12-16m / min
Avec l'eau froideAppareil(Pour un meilleur produit)
19 Boîtes de vitesse entraînement, 38 arbres de transmission (UPEtBas de la tige)
Type de colonne Stfroissementconception(Arche commémorative en fonte, épaisseur: 55mm)
5) Coupe hydraulique postAppareil(Total besoin de deux moules de coupe)
Poster à couper, arrêter decouper, troisType de morceaux de la conception de la lame de coupe, sans masque moteur hydraulique:37kw, avec un appareil de poinçonnage partager une station hydraulique
Pression de coupe:0-25MPA (250 bar);CoupeMatériel d'outil:CR12MOV(= SKD11 avec au moins un million de fois de vie de la vie), Traitement thermique au HRC58-62 degrés
Le pouvoir de coupe est fourni parla station hydraulique indépendante
Le système hydrauliqueavec filtre à huile pour l'huilefiltration, àAssurez-vous que l'huile circulée est propre et allonger la durée de vie du système hydraulique. (Voir l'image ci-dessous)
\
6) Système de contrôle PLC
Entrez la productionDonnées(Lot de production, pcs, longueur, etc.) sur l'écran tactile, il peut terminer la productionAutomatiquement.
Combiné avec: onduleur, codeur, etc.
Tolérance coupée à longueur≤ ± 1mm
Tension de contrôle24v
7) Rack de sortie:Non alimenté, Ununité,avecrouleaux dessus pour faciliter le mouvement
8) Produit fini
spécificationof
Highway W faisceau de faisceau de faisceau de faisceau
Profil:
Type 1
Type 2
Matériel
Largeur efficace: 312/502 / 506mm
Épaisseur matérielle: 2.5-3,81mm
Matériau applicable: acier galvanisé, bobine d'acier laminée à chaud
Avec résistance au rendement 345-550MPA
Épaisseur d'inspection: 2.67 / 3.42 / 3.43mm
Suivre
Decoiler hydraulique de 6 tonnes → Dispositif de nivellement → Dispositif de poinçonnage hydraulique → Dispositif d'alimentation → Système de la machine principale → Poste hydraulique Coupe → Rack de sortie
Poinçonner des trous: (comme suit)
Type 1:19x64 et 23x29;Taper2:19x64 et 23x29
Besoin total 2 moules de poinçonnage
Composants de la machine
1)6 tonnesDecoileur hydraulique: un ensemble
2)Dispositif d'alimentation et de nivellement
Avec guide de matériau d'alimentation et dispositif de nivellement
UP Trois Down quatre dispositif de nivellement totalement de sept arbres
cadre corporel fabriqué à partir deAcier de type H450parsoudage; côtéépaisseur du mur:Q235 T30mmArbres fabriqués à partir de45 # acier, Diamètre =φ120mm, Tonalité plaquée avec chromé dur, usinée de précision
3) trou de poinçonnageAppareil(Avec quatre moules de trou de poinçonnage)
Moteur hydraulique:37kw, Plage de pression hydraulique:0-25MPA (250bar)
Outil de poinçonnage et de coupeMatériel:mouleracier CR12MOV (= acier D2, avec un million de fois Poinçonner / Couper la vie), Traitement thermique au HRC58-62 degrés
2 cylindresperforationsystème ,le totalBesoin de quatre moules de poinçonnage19x64 et 23x29 et 20x65 et 24x30
4) machine principale
Cadre corporel fabriqué à partir deAcier de type H450par soudage
Rouleaux fabriqués à partir deCR12Acier, CNCTours, arbres de traitement thermique diamètre =ф95, précision usinée
Lecteur de boîte de vitesses (rouleaux supérieurs et inférieurs avec puissance)
Structure de type de colonneconception(Arche commémorative en fonte, épaisseur: 55mm)Boîte de vitesse conduisant, à propos de19 étapesformer
Moteur principal =45Kw,La fréquenceVitesse de contrôle de vitesse Moteur de redculate:Kséries
Block coulissant:150 * 150mm
Tous lesboulons à vis avec grade 8.8(usines bon marché utilisent de la faibles grade 4.8)Pour assurer la correction de la Structure de la machine étroitement et longue durée de vie pendant la machine à long terme
Vitesse de formage réelle12-16m / min
Avec l'eau froideAppareil(Pour un meilleur produit)
19 Boîtes de vitesse entraînement, 38 arbres de transmission (UPEtBas de la tige)
Type de colonne Stfroissementconception(Arche commémorative en fonte, épaisseur: 55mm)
5) Coupe hydraulique postAppareil(Total besoin de deux moules de coupe)
Poster à couper, arrêter decouper, troisType de morceaux de la conception de la lame de coupe, sans masque moteur hydraulique:37kw, avec un appareil de poinçonnage partager une station hydraulique
Pression de coupe:0-25MPA (250 bar);CoupeMatériel d'outil:CR12MOV(= SKD11 avec au moins un million de fois de vie de la vie), Traitement thermique au HRC58-62 degrés
Le pouvoir de coupe est fourni parla station hydraulique indépendante
Le système hydrauliqueavec filtre à huile pour l'huilefiltration, àAssurez-vous que l'huile circulée est propre et allonger la durée de vie du système hydraulique. (Voir l'image ci-dessous)
\
6) Système de contrôle PLC
Entrez la productionDonnées(Lot de production, pcs, longueur, etc.) sur l'écran tactile, il peut terminer la productionAutomatiquement.
Combiné avec: onduleur, codeur, etc.
Tolérance coupée à longueur≤ ± 1mm
Tension de contrôle24v
7) Rack de sortie:Non alimenté, Ununité,avecrouleaux dessus pour faciliter le mouvement
8) Produit fini